
ZSQ輕型氣動活塞切斷閥作用原理:
當信號壓力為零,由于彈簧(單作用僅有)的預緊力,使閥芯處于初始狀態(常開或常閉)。當執行機構接到信號壓力( 0.4~0.6MPa )時,壓縮彈簧,帶動推桿、閥體、閥芯移動到 限定位置,使閥門全開或全關。達到對管道內介質接通、切斷或管路間切換控制。
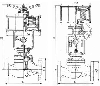
ZSQ輕型氣動活塞切斷閥是氣動單元組合儀表中的執行單元。它接收來自調節儀表的信號,控制工藝管道內流體的切斷與接通或切換流道。
氣動活塞切斷閥作用原理
當信號壓力為零,由于彈簧(單作用僅有)的預緊力,使閥芯處于初始狀態(常開或常閉)。當執行機構接到信號壓力( 0.4~0.6MPa )時,壓縮彈簧,帶動推桿、閥體、閥芯移動到限定位置,使閥門全開或全關。達到對管道內介質接通、切斷或管路間切換控制。配用二位三通電樣閥,使活塞式切斷閥控制更加方便、簡捷。
氣動活塞切斷閥結構原理
氣動活塞切斷閥由氣動活塞式執行機構與直行程調節機構二部組成,中間由支架邊接而成。根據調節機構的形式,氣動活塞切斷閥可分為直通單座切斷閥(ZSQP型)、直通套筒切斷閥(ZSQM型)、二位三通切斷閥(ZSQN型)三種型式。氣動活塞式執行機構有單作用(彈簧復位)和雙作用(雙進氣)二種。采用單作用執行機構,整機作用方式可分為氣關式(水平管路接通)和氣開式(水平管路斷開)。氣動活塞切斷閥有硬密封和軟密封兩種密封形式,分別適用于不同的溫度及壓力。ZSQM 型氣動活塞式套筒切斷閥采用平衡式閥芯,可提高切斷壓差。二位三通切斷閥采用四通式閥體,有三個流道口,特別適用于對兩條流路的切換。
主要零件材料
ZSQ活塞式氣動切斷閥閥體、閥蓋 | ZSQ活塞式切斷閥閥芯 | ZSQ氣動切斷閥閥座 | 氣缸體 | 活塞 | 填料 | 閥芯軟質密封件 |
HT200、ZG230-450、 ZG1Cr18Ni9Ti、ZGOCr18Ni12Mo2Ti | 1Cr18Ni9Ti、 Cr18Ni12Mo2Ti | 1Cr18Ni9Ti、 Cr18Ni12Mo2Ti | ZG230-450 | ZAlSi12 | 聚四氟乙烯,柔性石墨 | 增強聚四氟乙烯 |
氣動活塞切斷閥主要技術參數
ZSQ型氣動切斷閥公稱通徑 DN ( mm ) | 20 | 25 | 32 | 40 | 50 | 65 | 80 | 100 | ||
額定流量系數( KV ) | 7 | 11 | 20 | 30 | 48 | 75 | 120 | 190 | ||
額定行程( mm ) | 8 | 12 | 20 | 25 | ||||||
氣缸直徑( mm ) | 75 | 100 | 150 | |||||||
允許泄 >漏 量 | 硬密封( l/h ) | 單座、三通: 1.2 × 10 -7 ×閥額定容量 套筒: 5 × 10 -6 ×閥額定容量 | ||||||||
軟密封 | VI 級 | |||||||||
工作溫度() | -20~200 -40~450 | |||||||||
公稱壓力 PN ( MPa ) | 1.6 4.0 6.4 | |||||||||
允許壓差 >( MPa ) | ZSQP | 單作用 | 1.16 | 0.66 | 0.39 | 0.6 | 0.39 | 0.4 | 0.31 | 0.20 |
雙作用 | 6.4 | 5.0 | 2.8 | 3.3 | 2.13 | 2.71 | 1.75 | 1.11 | ||
ZSQM | 單作用 | 公稱壓力 | ||||||||
雙作用 | ||||||||||
ZSQN | 單作用 | 0.89 | 0.57 | 0.35 | 0.56 | 0.36 | 0.45 | 0.30 | 0.20 | |
雙作用 | 5.2 | 3.22 | 2.03 | 2.27 | 1.46 | 2.00 | 1.32 | 0.85 | ||
信號壓力( KPa ) | 0 或 400~600 |
訂貨須知 1.產品型號與名稱 2.公稱通徑DN(mm 3.公稱壓力 4.流量特性要求 5.閥體材質及閥內件材料 6.介質種類和溫度范圍 7.閥前后壓力(壓差) 8.密封形式 9.配套附件,建議用戶安裝空氣過濾器三聯件與二位五通電磁閥